物件概要
- 物件名
- 羽村市双葉町3丁目 新築戸建
- 種類
- 新築一戸建
- 住所
- 羽村市双葉町3丁目
- アクセス
- JR八高線「東福生」歩21分
JR青梅線「福生」歩31分
JR青梅線「羽村」歩33分
- 価格
- 4980万
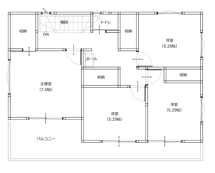
- 間取り
- 4LDK+S(納戸)
- 築年
- 2026年6月
- 建物面積
- 127.1㎡
- 建物坪数
- 38.51坪
- 土地面積
- 159.76㎡
- 土地坪数
- 48.41坪
物件詳細
- 設備・条件
- ■断熱材:吹付断熱 ダルトフォーム 壁:85mm 屋根170mm
■床断熱材:ミラフォームラムダ 55mm (熱伝導率0.022)
■外装 外壁:ニチハ・KMEW 14mm
■建具:EIDAI スキスムT
■フローリング:EIDAI銘樹 ツキ板(抗ウイルス・抗菌加工)
■キッチン:EIDAI ラフィーナネオ 2700mm
(グースネックシャワーヘッド・食器洗い乾燥機付・背面収納付)
■カップボード:EIDAI 2700mm
(家電収納 蒸気処理機能・ダストボックス付)
■ユニットバス:Panasonic オフローラ 1616サイズ 浴室暖房乾燥機付
■洗面化粧台:Panasonic シーライン 1700mm 三面鏡+ワイドカウンター
■トイレ:TOTO ZJ1
■サッシ:LIXIL サーモスL (LOW-Eガラス・樹脂サッシ)
■タイル:玄関 - リフォーム
- -
- 部屋
- 4部屋+3S
- 敷地延長
- なし
- 地目
- 宅地
- 土地権利
- 所有権
- 建物構造
- 木造
- 建物階建
- 2階建
- 階毎の面積
- 1階:56.72㎡ 2階:70.38㎡
- 駐車場
- 3台
- 都市計画
- 市街化区域
- 用途地域
- 第一種低層住居専用地域
- 建ぺい率/容積率
- 40% 80%
- 接道状況
- 北西側 公道 4m 南西側 公道 4m
- 再建築
- 再建築可
- 引渡時期
- 相談
- 物件情報更新日
- 2026/1/30
- 物件コード
- 取引態様
- 売主
写真一覧
アクセス
JR八高線「東福生」歩21分
JR青梅線「福生」歩31分
JR青梅線「羽村」歩33分

































